Haben Sie Fragen?
+49 (381) 492700
info@ab-braeuer.de
Lexikon
Navigation anzeigen
Bräuer | Architekten | Rostock
Büro
Profil
Team
Jobs
Leistungen
Architektur
Architektur - Beraten
Architektur - Planen
Architektur - Bauen
ArchiCAD Support
Visualisierung
Aufmaß 3D 2D | BIM
Referenzen
Architektur
Visualisierung
Aufmaß Bestand 2D 3D | BIM
Kontakt
Leistungsübersicht
Alle Referenzen
Kontakt
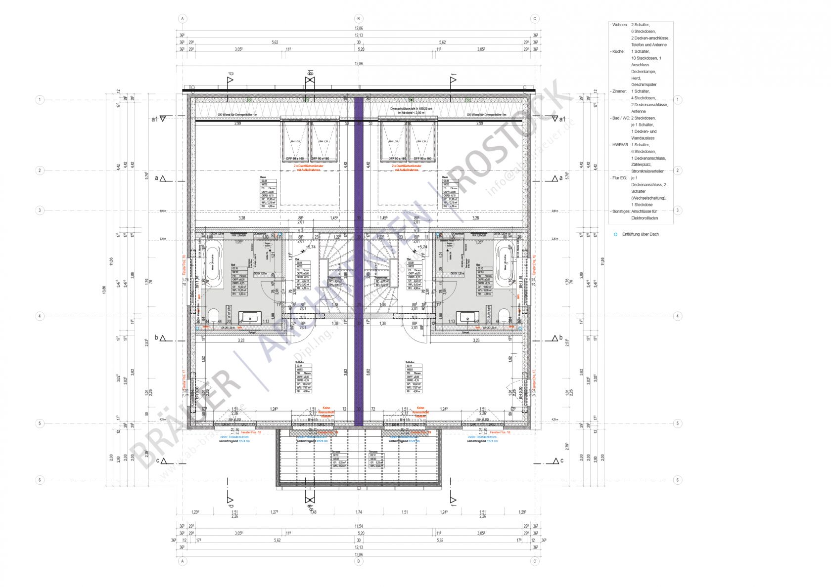
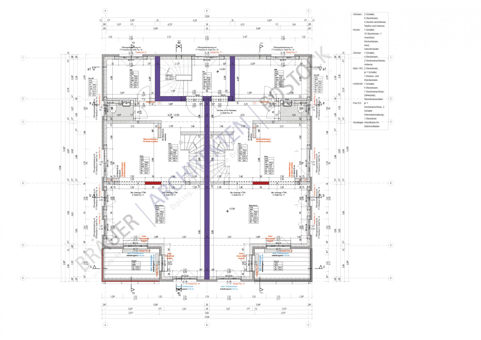
MFH mit 3 WE in Diedrichshagen | Neubau
Baustellen-Dokumentation (Zum Vergrößern klicken)